500 Cortlandt Street, Belleville, NJ, 07109
Located in close proximity to Highway NJ-21, this facility is optimized for high order volume from a larger delivery radius. With Saint Michael’s Medical Center and Rutgers medical campus, this facility services high delivery demand from hospital workers ordering in during their shifts as well as visitors searching for better food options in the area. This neighborhood has extremely high consumer demand, but limited restaurant options; minimal competition makes it easier for your restaurant to succeed.
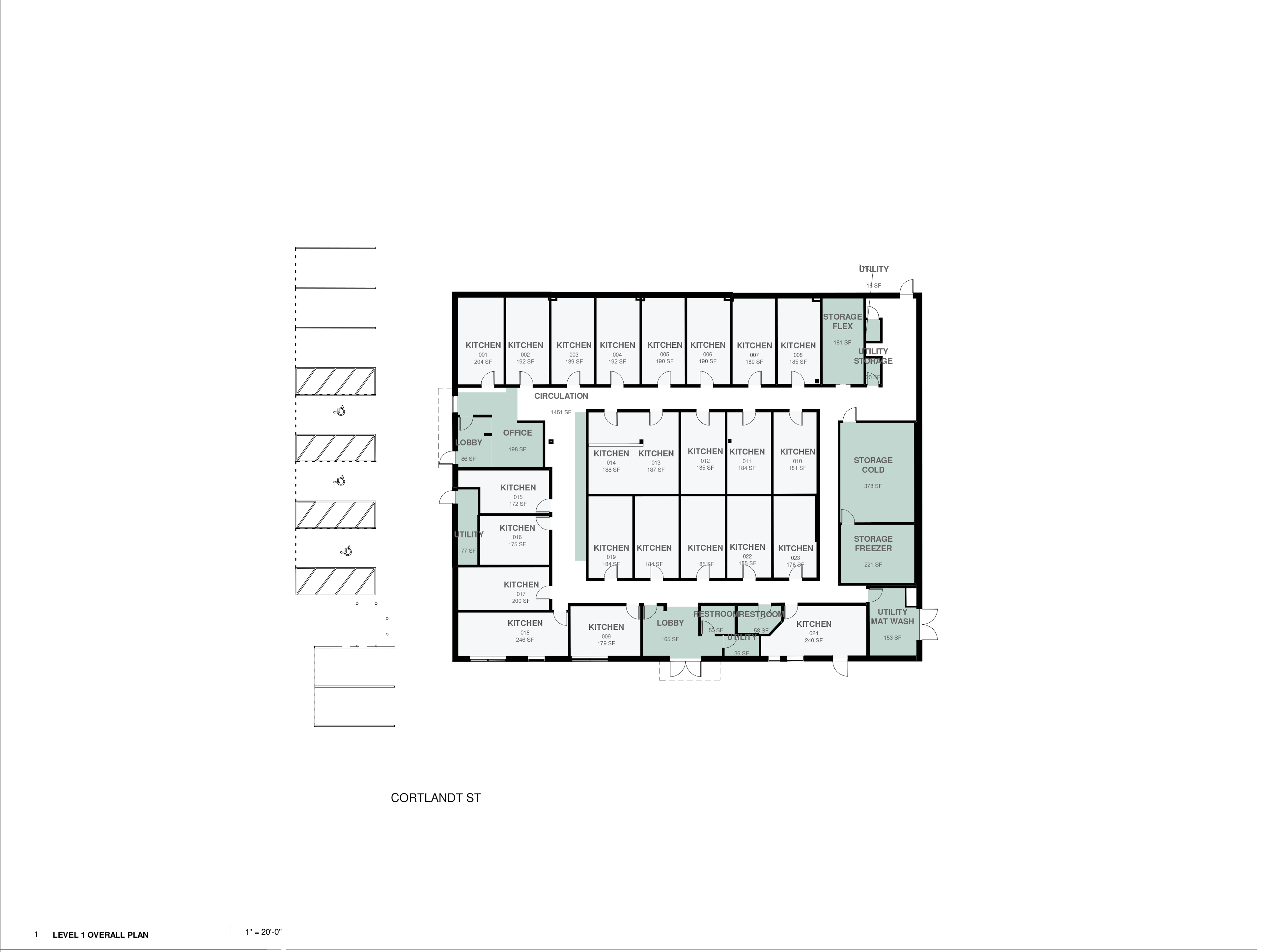
We design floorplans to match your workflow — optimized for efficiency, flexibility, and smooth operations.

Choose a layout that fits your operation—from a single kitchen to a fully custom build.
Every kitchen comes with the space, services, and essentials you need to operate.
Private kitchen
Driver pickup area
Staff locker area
Restrooms
Mop wash
Order pickup & processing
Safety & health inspections
Cleaning & maintenance
Courier handoff
Delivery software
Delivery logistics
Extraction & ventilation
On-site support staff
3 compartment sink
Prep sink
Hand sink
Commercial hood
Tablet
Grease-trap / interceptor*
Gas points
Power outlets
High power lighting
Cold & hot water lines
Gas / fire safety system
WiFi
Trash / recycle
Ethernet connections
Grease / trap cleaning
Hood / flue cleaning
Pest control
From startup to scale-up, we support kitchens handling thousands of orders weekly — with flexible, cap-free infrastructure.
Loading map...
Pay only for space you need, compared to 2000 ft2 at a traditional restaurant and get cooking in weeks, not months.